- Woonoppervlakte
- Circa 164 m²
- Perceeloppervlakte
- Circa 313 m²
- Bouwjaar
- Gebouwd in 1994
- Aantal kamers
- 5 kamers (4 slaapkamers)
Stijlvol en royaal wonen in een rustige woonwijk in Nederasselt.
Instapklare 2-onder-1-kapwoning met garage, overkapping, 4 slaapkamers en energielabel A
Op een rustige locatie in een prettige woonwijk in Nederasselt ligt deze verrassend ruime en sfeervolle 2-onder-1-kapwoning. Met maar liefst vier slaapkamers, een royale L-vormige woonkamer, een moderne keuken en een diepe achtertuin is dit een ideale woning voor gezinnen en doorstromers die op zoek zijn naar comfort, ruimte én rust, op korte afstand van Nijmegen.
De woning beschikt over energielabel A, parkeren op eigen terrein voor twee auto’s en is door de jaren heen keurig onderhouden en gemoderniseerd.
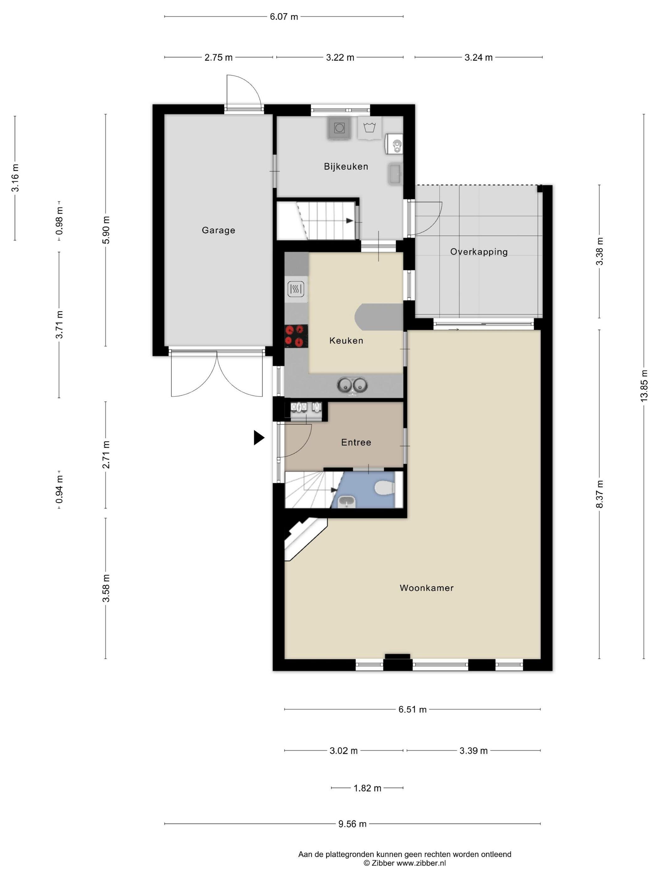
Begane grond
Via de entree met meterkast en een ruim toilet met fontein en afzuiging betreedt u de woning. De zeer ruime en lichte L-woonkamer vormt het hart van het huis en is voorzien van een sfeervolle gashaard (geschikt als houtkachel), een visgraat pvc-vloer en fraaie travertin vensterbanken. De dubbele schuifpui zorgt voor een mooie verbinding met het terras en de achtertuin.
De halfopen keuken (Bruynzeel) met barretje is praktisch ingericht en voorzien van diverse inbouwapparatuur, waaronder een elektrische kookplaat, afzuigkap, combimagnetron, koelkast/vriezer en vaatwasser.
Aansluitend bevindt zich de bijkeuken met was-/droogopstelling, cv-installatie (Vaillant, 2014) en een metalen wasbak. Vanuit hier heeft u toegang tot de aangebouwde garage, de ruime kelder (met buitenventilatie) en de achtertuin.
Eerste verdieping
De ruime overloop geeft toegang tot drie slaapkamers. De grootste slaapkamer bevindt zich aan de voorzijde en is voorzien van een tv-aansluiting en veel stopcontacten. Aan de voorzijde ligt tevens de tweede ruime slaapkamer. De derde slaapkamer bevindt zich aan de achterzijde en beschikt over een wastafelaansluiting.
De royale badkamer is compleet uitgevoerd met een ligbad, vernieuwde inloopdouche (2021), zwevend toilet, wastafelmeubel met spiegel en verlichting, mechanische ventilatie en een gestukt plafond met inbouwspots. Daarnaast is de badkamer voorzien van vloerverwarming.
Tweede verdieping
Via de vaste trap bereikt u de tweede verdieping. Hier vindt u een ruime overloop met veel bergruimte onder de schuine kap en een aparte berging. De vierde slaapkamer is ruim en licht dankzij het Velux dakraam en beschikt over opbergruimte achter de knieschotten. Boven het plafond bevindt zich nog een extra zolder-/bergruimte.
Tuin
De woning beschikt over een verzorgde grind voortuin en een ruime, in 2023 vernieuwde beklinkerde oprit met voorbereiding voor een elektrische laadpaal.
De diepe achtertuin biedt veel privacy en is fraai aangelegd met een windvrij terras direct aan de woning, voorzien van een moderne aluminium glazen overkapping (2023) met zonwering en verlichting. Verder beschikt de tuin over een tweede terras, gazon en diverse borders met vaste planten en heesters. De tuin is rondom groen en beschut, wat zorgt voor een fijne, rustige sfeer.
Bijgebouwen
De aangebouwde, volledig geïsoleerde stenen garage is voorzien van elektra, dubbele deuren en een loopdeur naar de tuin en bijkeuken. Ideaal voor hobby, opslag of het stallen van een auto.
Bijzonderheden
• Energielabel A
• Gelegen aan een rustige weg in een woonwijk
• Vier slaapkamers
• Parkeren op eigen terrein voor twee auto’s
• Volledig geïsoleerd (met extra geluidsisolatie tussenmuur)
• Hardhouten kozijnen met draai-/kiepsysteem
• Dubbel glas (m.u.v. voor- en achterdeur)
• Cv-installatie Vaillant (2014)
• Schilderwerk elk jaar bijgehouden, achterzijde in 2025
• Glazen / aluminium terrasoverkapping (2023)
• Vloerverwarming in de badkamer
• Voorzien van glasvezel, elektrisch bedienbare zonwering, schuifpui en enkele vliegenhorren
• Ruime kelder (3.22 x 3.01 m)
• Droge kruipruimte aanwezig
• Waterpomp met puls aanwezig
• Platte dak is in 2019 vernieuwd
• Deze tweekapper is vanuit de bouw extra tegen geluid geïsoleerd met de buren, vanwege muziekhobby.
• Indien men de woonkamer wil uitbouwen, de zijmuur van de buren is al geïsoleerd.
De bewoner vertelt: “Door de ideale ligging heeft het huis een zonnige tuin maar blijft toch heerlijk koel tijdens warme zomerdagen. En als mede-bouwer weet ik als geen ander hoeveel aandacht er is besteed aan o.a. de spouwmuurisolatie, de geluidsisolatie van de tussenmuur en de bouw van de waterdichte kelder.”
Deze woning combineert ruimte, comfort en een rustige ligging op een aantrekkelijke manier en is daarmee uitermate geschikt voor gezinnen die op zoek zijn naar een volgende stap.
Interesse? Neem contact op voor een bezichtiging en ervaar zelf de ruimte en sfeer van deze woning. Lees de volledige omschrijving
Overdracht
- Vraagprijs
- € 498.000 k.k.
- Status
- Beschikbaar
- Aanvaarding
- In overleg
Bouw
- Object type
- Eengezinswoning, 2-onder-1-kapwoning
- Soort bouw
- Bestaande bouw
- Bouwjaar
- 1994
- Soort dak
- Zadeldak bedekt met pannen
Oppervlakte en inhoud
- Woonoppervlakte
- 164 m²
- Perceeloppervlakte
- 313 m²
- Inhoud
- 673 m³
- Gebouwgeb. buitenruimte
- 11 m²
Indeling
- Aantal kamers
- 5 kamers (4 slaapkamers)
- Aantal badkamers
- 1 badkamer en 1 apart toilet
- Badkamervoorzieningen
- Inloopdouche, ligbad, toilet, vloerverwarming, en wastafelmeubel
- Aantal woonlagen
- 3 woonlagen en een kelder
- Voorzieningen
- Buitenzonwering, glasvezelkabel, mechanische ventilatie, en schuifpui
Energie
- Energielabel
- A
- Isolatie
- Dakisolatie, grotendeels dubbelglas, muurisolatie, vloerisolatie en volledig geïsoleerd
- Verwarming
- Cv-ketel, gashaard en gedeeltelijke vloerverwarming
- Warm water
- Cv-ketel
- Cv ketel
- Vaillant (gas gestookt combiketel uit 2014, eigendom)
Buitenruimte
- Tuin
- Achtertuin en voortuin
- Afmetingen achtertuin
- 128 m² (12,56 meter diep en 10,16 meter breed)
- ligging tuin
- Gelegen op het oosten
Garage
- Soort garage
- Aangebouwde stenen garage
- Capaciteit
- 1 auto
- Voorzieningen
- Elektra
- Isolatie
- Dakisolatie, dubbel glas, muurisolatie, vloerisolatie en volledig geïsoleerd
Parkeergelegenheid
- Soort parkeergelegenheid
- Op eigen terrein en openbaar parkeren
Energieverbruik in Nederasselt
Energielabel deze woning
Energielabel A
Publicatie energielabel:
Stroomverbruik per jaar
(Gemiddelde twee onder een kap in Nederasselt)
Gasverbruik per jaar
(Gemiddelde twee onder een kap in Nederasselt)
* Cijfers zijn afkomstig van het CBS en bedoeld als indicatie en kunnen verschillen voor deze woning
Indicatie hypotheeklasten
Eigen inleg:
Spaargeld / overwaarde
Rente:
Laagste 10-jaars rente
Laagste 10-jaars rente
2,78% - Centraal Beheer - NHG
3,04% - Centraal Beheer - 80%
Laagste 20-jaars rente
3,29% - Centraal Beheer - NHG
3,52% - Centraal Beheer - 80%
Laagste 30-jaars rente
3,41% - Centraal Beheer - NHG
3,7% - Argenta - 80%
Hypotheek:
Bruto maandlasten: € 0 p/m
Netto maandlasten: € 0 p/m
Hoe berekenen we dit?
Het rentepercentage is gebaseerd op de laagste 10 jaars vaste rente voor één hypotheekdeel. De vermelde rente (3.04% zonder NHG) is gecontroleerd op 02-04-2026. Deze berekening is gebaseerd op een annuïteitenhypotheek die volledig wordt afgelost, waarbij de maandlasten gedurende de gehele looptijd gelijk blijven. De werkelijke rente en netto maandlasten kunnen variëren, afhankelijk van uw persoonlijke situatie en de hypotheekverstrekker. Raadpleeg een financieel adviseur voor een nauwkeurige berekening en advies. Aan deze berekening kunnen geen rechten worden ontleend; het dient enkel als indicatie.
Documentatie
Kadastrale kaart
Leefomgeving
Brochure
Plattegronden PDF
WOZ waarderapport
BAG uittreksel
Bezichtiging
Waardebepaling
Zoekopdracht
Alles downloaden
Zonnegrenzen bekijken
Inwoners in Nederasselt
Cijfers voor postcodegebied 6612
- Totaal aantal inwoners
- 805 inwoners
- Mannen
- 52%
- Vrouwen
- 48%
Inwoners in Nederasselt
Cijfers voor postcodegebied 6612
- tot 15 jaar
- 16%
- 15 tot 25 jaar
- 11%
- 25 tot 35 jaar
- 20%
- 45 tot 65 jaar
- 34%
- 65 en ouder
- 19%
Huishoudens in Nederasselt
Cijfers voor postcodegebied 6612
- Eenpersoons zonder kinderen
- 23%
- Meerpersoons zonder kinderen
- 35%
- Huishoudens zonder kinderen
- 58%
Huishoudens in Nederasselt
Cijfers voor postcodegebied 6612
- Huishoudens met één kind
- 5%
- Huishoudens met meerdere kinderen
- 37%
- Huishoudens met kinderen
- 42%
Woningen in Nederasselt
Cijfers voor postcodegebied 6612
- Woningen voor 1945
- 17%
- Woningen tussen 1945 en 1965
- 9%
- Woningen tussen 1965 en 1975
- 20%
- Woningen tussen 1975 en 1985
- 16%
- Woningen tussen 1985 en 1995
- 11%
Woningen in Nederasselt
Cijfers voor postcodegebied 6612
- Woningen tussen 1995 en 2005
- 11%
- Woningen tussen 2005 en 2015
- 16%
- Woningen na 2015
- 1%
- Huurwoningen
- 20%
- Koopwoningen
- 80%
Overige in Nederasselt
Cijfers voor postcodegebied 6612
- Gemiddelde WOZ waarde
- € 324.000,-
- Personen onder de 65 met uitkering
- Niet beschikbaar
Overige in Nederasselt
Cijfers voor postcodegebied 6612
- Adressen per km²
- 109
- Stedelijkheid (schaal 1 op 5)
- 20%
Korte feiten over Nederasselt
Nederasselt is een klein landelijk dorp dat ligt in de Nederlandse provincie Gelderland. Het is een van de vier kernen van de gemeente Heumen. Naast Nederasselt behoren Heumen, Malden en Overasselt tot deze gemeente, waarvan het gemeentehuis in Malden staat.
HW Makelaardij Wijchen
Indien u vragen heeft of u wilt een bezichtiging inplannen, dan kunt u gebruik maken van het formulier hiernaast. Er zal daarna op korte termijn contact met u worden opgenomen.
Contact opnemen
Over HW Makelaardij
HW Makelaardij staat garant voor een enthousiaste benadering, transparante communicatie en heldere afspraken. U kunt rekenen op onze persoonlijke aandacht en een actieve, deskundige begeleiding. Als u op zoek bent naar een makelaar die uw belangen vooropstelt, bent u bij ons aan het juiste adres. HW Makelaardij werkt snel en professioneel!
Onze sterke punten zijn:
- Dankzij onze kleinschalige portefeuille kunnen wij u volop persoonlijke aandacht en maatwerkadvies bieden.
- Wij bieden scherpe courtagetarieven en een aantrekkelijk uurtarief.
- U kunt rekenen op onze intensieve begeleiding gedurende het hele aan- en verkooptraject.
- Met onze uitgebreide (juridische) kennis houden wij u volledig geïnformeerd over alle aspecten van het aan- en verkopen van een woning.
- Wij bieden een uitgebreid scala aan diensten.
Of u nu een huis wilt kopen, verkopen of de actuele marktwaarde van uw woning wilt weten, wij nodigen u van harte uit voor een vrijblijvend gesprek bij ons op kantoor in Balgoij (Wijchen) of bij u thuis.
Nieuwste reviews
-
Ooievaarshorst 6
Hele fijne makelaar altijd behulpzaam als je vragen hebt of ergens mee zit is er echt voor de verkoper gewoon een topper
-
Bas van den Hoogen
Een toegankelijke en prettige makelaar met oog voor de klant; de klantvriendelijkheid en betrokkenheid maakten het traject zeer aangenaam.
-
L Gr
Beoordeeld met een 5